Calidum advolvit slitting lineaEst momenti productio apparatu late in metallum processus industria. Pelagus munus est secare latius calidum, advolvit metallum coil in multiple denudat requiritur latitudine per longitudinem directionem. Haec denudat solent in subsequent volubilem, blanking, frigus flexis et stampadium processus, et facti sunt basic materiae pro variis industriae products. Hoc articulus erit inducere in workflow, technica parametri, communis operating problems et solutiones calidum advolvit slitting apparatus in detail. Si vos postulo adipisci magis parametri vel video notitia, grata ad consulere Kingreal Steel Sild!

Calidum advolvit laminas sunt ferro laminis aut denudat, quae involutus post calefacit. Et principalis commoda includit:
Princeps lenta: calidum advolvit laminis sunt processionaliter ad altum temperaturis, quod potest eliminare aliqua interna accentus et amplio roughness in materia.
Cost-efficaciam: comparari cum frigore advolvit laminis, calidum-advolvit laminis habent inferioribus productio costs et idoneam ad magna-scale productio.
High productio Efficens: calidum advolvit slitting machinis potest cito et efficiently slit magna ligno in requiritur width ad aptet ad mutationes in foro demanda.
Ex his sunt, calidum-advolvit late late in aedificationem structures, gravibus machinery vestibulum et aliis agris.
|
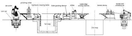
LUTEUScalidum advolvit slitting lineaEt operator feeds calidum advolvit coil in decorarem Mandrel. Riferant enim calidum advolvit slitting apparatus: et deciser iniustitia pelagus et pascit ferro in slitting caput. Slitting calidum advolvit slitting linea, ad slitting caput ferro est lapsus in multiple angusta denudat per rotating ferrum. Institutiones enim calidum advolvit slitting machina: et operator inspexerit se litus ut in specificationem latitudinem et obstupuerunt condicionem obviam requisita. Accentus relevium ad calidum advolvit slitting linea: et firma transit per annularum cisternam eliminare accentus de materia post slitting et ensure rewinding absque flexione. Bundling et packaging: Fasciculus et sarcina quisque Strand secundum Customer elit. |
![]() |
Exemplar
Exemplar I
Exemplar II
Exemplar III
Exemplar IV
Originale coil
Hot-advolvit laminam
Hot-advolvit laminam
Hot-advolvit laminam
Hot-advolvit laminam
Materia crassitudine
0.8mm, VI.0mm
0.8mm, 6.0mm
2.0mm, 12.0mm
3.0mm, 16.0mm
Material Width
1600mm (max)
1800mm (max)
2000mm (max)
2200mm (max)
Pondus coil
30ton (max)
30ton (max)
30ton (max)
30ton (max)
Accurate width
± 0.15MM
± 0.15MM
± 0.2mm
± 0.3mm
Celeritate
120m / min (max)
120m / min (max)
80m / min (max)
60M / min (max)
|
① calidum advolvit slitting apparatus cum princeps efficientiam slitting facultatem A insignes pluma estcalidum advolvit slitting machinaNumquid non potest lapsus ad XL angusta denudat simul. Hoc munus vehementer obviam customers necessitatibus magnam scale productio. Cum acceleratione industriarum, in foro demanda pro metallum denudat est crescente, praesertim in industries ut constructione, automobile vestibulum et in domum adjumine. Et princeps slitting facultatem calidum advolvit slitting linea enables fabrica providere numerus qualified products in brevi, ita improvidus productio efficientiam et reducendo unit costs. |
![]() |
|
② omnino automated calidum advolvit slitting machina Aestus advolvit slitting linea adoptat plene automated consilio et instructa cum provectus imperium ratio ad consequi summus celeritas operationem. In maximum productio celeritas potest pervenire CXX m / min, quod est magis materiae potest processionaliter per unitas tempus, ulterius improvidus productio efficientiam. Et plene automated consilio non solum reduces opus manual interventu, sed etiam reduces facultatem humanae operating errores et amplio uber constantia et qualitas. In calidum advolvit slitting linea scriptor automated imperium ratio potestis potest monitor processus in realis tempus et adjust parametri tempore in occursum necessitatibus diversis materiae et crassitudines. |
![]() |
|
③customized calidum advolvit slitting machina Ut melior obviam necessitates customers, kingreal ferro Sildm provideres Lorem calidum advolvit slitting linea solutions. Secundum ad drawings provisum est a customers et ipsa productionem necessitates, kingreal ferro Sild potest consilio alium calidum advolvit slitting machina vestibulum solutiones ad curare efficientiam et lenitate productionis processus pro customers. Kingreal ferro Slitter calidum advolvit slitting machinis dividitur in tres pelagus genera aptet ad varia crassitudines; Lux MODULUS Slitting Machina: Specialized in dispensando in crassitudine 0.2mm ad 3mm. Medium ME GUGE Slitting Machina, idoneam ad crassitudinem 3mm ad 6mm. Gravis MODULUS slitting Machina, capax processus in crassitudine 6mm ad 16mm. |
![]() |
Incalidum advolvit slitting lineapotest producendum laterale flectens per slitting processus. Fortasse causam;
I. flexiones rudis materiae:
Et accentus de ferro laminam non omnino eliminated per volvens processus. Post longitudinalibus tondentes, accentus est dimisit et laminam flectitur. Cum accentus in medio laminam dimisit utrinque laminam flectit exterior; Cum accentus utrinque laminam dimisit medium laminam flectit medium.
II. Tendentes ex Burrers:
Burrers maior debitum ad improprium temperatio de ferrum gap durante longitudinalibus tondenda. Cum volvens, burrers in ore sunt equivalent ad maius laminam crassitiem, quae facit in extremis extendere et flectere.
III. Tendentes ex inaequaliter inter superiores et inferioribus laminis:
Dum sinistra et ius hiatus maiora, incisum de tonsione parte etiam maior et latus minorem gap quam sinistra et dextram habet maius proten, ita flectit.
IV. Fendentes per inaequales tensio:
Cum volvens, eadem tensio debet applicari tota latitudine ferro laminam. Si tensio concentratur in latere, inclinatio occurret.
V. inclinatio causatur a celeri motus de deviationem disciplinam fabrica:
Per processui, si celeritas disciplinam est ieiunium, latus in contactu cum deviatione correctio erit ex parte extenditur et flectitur.
Si sheet materia flectitur post longitudinale tonderet, et graviter afficiunt qualis est sheet coiling, sic oportet eliminated. Operam ut solvit ad rationes ut sheet volvens, apparatu temperatio, et operatio modum.